

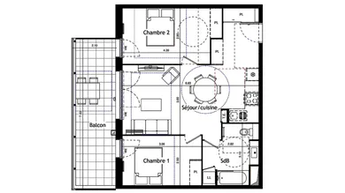
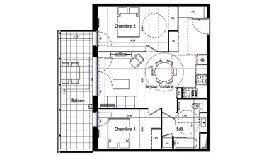
Appartement T3 avec balcon à Valras-Plage. Située chemin de l’Oranger, à seulement 150 mètres de la plage, la résidence contemporaine Les Embruns conjugue élégance architecturale et qualité de vie préservée. Entre mer et nature, cette adresse offre un cadre de vie authentique, paisible et lumineux au cœur de Valras-Plage, charmante station balnéaire à taille humaine. Disponible 2027. Un appartement raffiné : Situé au 1 er étage, cet appartement T3 de 59 m² environ habitables se prolonge par un balcon de 16 m² environ. - Séjour/cuisine de 29 m² environ. - Deux chambres confortables. - Salle de bains moderne équipée. - Annexe incluse : deux parkings extérieurs. De belles prestations : - Volets roulants électriques et menuiseries PVC double vitrage pour une isolation renforcée. - Chauffage électrique individuel et ballon thermodynamique collectif pour l’eau chaude sanitaire. - Résidence sécurisée avec accès par digicode et local à vélos sécurisé. L’art de vivre à Valras-Plage : - À 150 m de la plage et 5 minutes à pied des Halles Marty. - Commerces, restaurants et port de plaisance accessibles à pied. - Environnement préservé entre les dunes des Orpellières et le littoral méditerranéen. - Transports beeMob vers Béziers et navette gratuite en saison. - Station balnéaire vivante toute l’année, conjuguant authenticité et modernité. N’hésitez pas à me contacter pour plus d’informations ou pour un accompagnement sur mesure. Honoraires d’agence à la charge du vendeur. Bien non soumis au DPE. Les informations sur les risques auxquels ce bien est exposé sont disponibles sur le site Géorisques : www.georisques.gouv.fr. La présente annonce immobilière a été rédigée sous la responsabilité éditoriale de Mlle Sarah Rozière EI (ID 83696), mandataire indépendant en immobilier (sans détention de fonds), agent commercial de la SAS I@D France immatriculé au RSAC de Clermont-Ferrand sous le numéro 978616993, titulaire de la carte de démarchage immobilier pour le compte de la société I@D France SAS.
Ref: 1865207-11
of
Fees incl. VAT payable by the seller
See the fees scaleEnergy performance diagnosis
Not requiredGreenhouse gas emission index
Not requiredSimilar properties




Nearby towns
Others property types in Valras-Plage
Others property types nearby