

€486,000
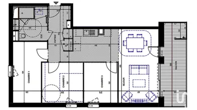
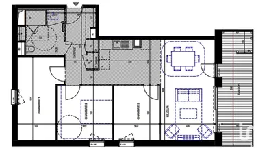
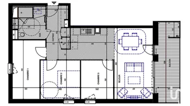
Appartement T4 avec balcon et box à Annecy. Située Avenue de Vert-Bois, la résidence Les Camarines s’érige comme un havre résidentiel et verdoyant, à seulement quelques minutes du centre historique d’Annecy et de son lac. Disponible 2027. Au 1 er étage , découvrez un appartement T4 de 77 m² environ, prolongé par un balcon de 12 m² environ. Il se compose d’un séjour/cuisine lumineux de 30 m² environ, de trois belles chambres et d’une salle d’eau moderne. Annexes : box privatif en sous-sol. Belles prestations : - Pompe à chaleur 3 en 1 (chauffage, rafraîchissement, eau chaude). - Grandes baies vitrées, volets roulants électriques. - Résidence sécurisée avec espaces paysagers, locaux vélos et stationnements boxés. Une adresse recherchée : - Centre d’Annecy et gare SNCF à 10 minutes. - Lac d’Annecy et plages accessibles en vélo. - Commerces, écoles et services au pied de la résidence. Cet appartement conjugue modernité, confort et emplacement stratégique, au sein d’un cadre verdoyant et durable. N’hésitez pas à me contacter pour plus d’informations ou pour un accompagnement sur mesure. Honoraires d’agence à la charge du vendeur. Bien non soumis au DPE. Les informations sur les risques auxquels ce bien est exposé sont disponibles sur le site Géorisques : www.georisques.gouv.fr. La présente annonce immobilière a été rédigée sous la responsabilité éditoriale de M. Pierre Magerand EI (ID 86098), mandataire indépendant en immobilier (sans détention de fonds), agent commercial de la SAS I@D France immatriculé au RSAC de Cusset sous le numéro 938729175, titulaire de la carte de démarchage immobilier pour le compte de la société I@D France SAS.
Ref: 1845935-18
of
Fees incl. VAT payable by the seller
See the fees scaleEnergy performance diagnosis
Not requiredGreenhouse gas emission index
Not requiredSimilar properties




Nearby towns
Others property types in Annecy
Others property types nearby