

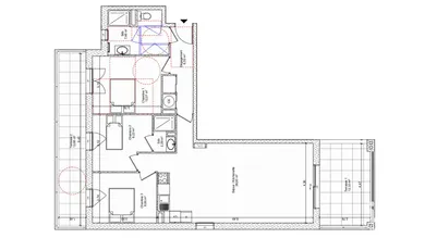
Appartement T4 avec terrasses à Bormes-les-Mimosas. Située chemin du Content, au cœur d’un environnement naturel préserve, la résidence Le Parc du Content conjugue architecture provençale et douceur de vivre méditerranéenne. Implantée dans un quartier calme et arboré, cette adresse incarne sérénité et bien-être au quotidien. Disponible 2028. Un appartement raffiné : Situé au 1 er étage, cet appartement T4 de 86 m² environ habitables se prolonge par une terrasse de 12 m² environ. - Séjour de 39 m² environ. - Trois chambres confortables. - Deux salles d'eau modernes. De belles prestations : - Menuiseries extérieures double vitrage isolant. - Isolation thermique et acoustique renforcée. - Espaces verts paysagers et zones ombragées au sein du domaine. L’art de vivre à Bormes-les-Mimosas : - À proximité du village, de ses boutiques et restaurants. - À quelques minutes des plages du Lavandou. - Entre Hyères, Toulon et Saint-Tropez. - Domaine paysager avec promenade végétalisée. - Quartier calme et résidentiel, idéal pour profiter de la douceur méditerranéenne. N’hésitez pas à me contacter pour plus d’informations ou pour un accompagnement sur mesure. Honoraires d’agence à la charge du vendeur. Bien non soumis au DPE. Les informations sur les risques auxquels ce bien est exposé sont disponibles sur le site Géorisques : www.georisques.gouv.fr. La présente annonce immobilière a été rédigée sous la responsabilité éditoriale de M. Pierre Magerand EI (ID 86098), mandataire indépendant en immobilier (sans détention de fonds), agent commercial de la SAS I@D France immatriculé au RSAC de Cusset sous le numéro 938729175, titulaire de la carte de démarchage immobilier pour le compte de la société I@D France SAS.
Ref: 1896270-31
of
Fees incl. VAT payable by the seller
See the fees scaleEnergy performance diagnosis
Not requiredGreenhouse gas emission index
Not requiredSimilar properties



