

€310,900
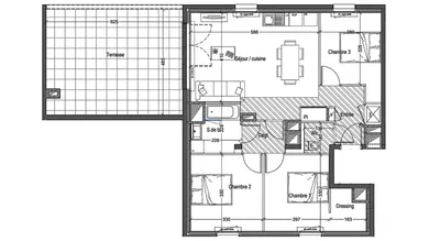
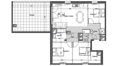
Appartement T4 avec terrasse à Clermont-Ferrand. Située à l’angle de l’avenue Barbier Daubrée et de la rue Bernard Brunhes, la résidence contemporaine Conversio, propose un cadre de vie idéal entre le vieux Clermont et le quartier des Carmes. Cette résidence allie confort, performance énergétique et modernité, tout en profitant d’un environnement calme et verdoyant, proche du centre-ville et des transports. Disponible 2027. Un appartement raffiné : Situé au 5 ème étage, cet appartement T4 de 76 m² environ habitables se prolonge par une terrasse de 30 m² environ. - Séjour/cuisine de 28 m² environ. - Trois belles chambres dont une avec dressing. - Salle de bain moderne et wc séparé. - Annexes incluses : 1 box en sous-sol. De belles prestations : - Chauffage par pompe à chaleur et ballon thermodynamique. - Volets roulants motorisés. - Espaces verts paysagers et locaux vélos sécurisés L’art de vivre à Clermont-Ferrand : - À 200 m de l’arrêt de bus (lignes 3 et 4) et 550 m du tramway ligne A. - Écoles et lycées accessibles à pied (Sidoine Apollinaire, Godefroy de Bouillon). - À 10 min à vélo de la Place de Jaude et du centre historique. - Proximité immédiate des commerces, services et espaces verts. - Accès rapide aux autoroutes A75, A89 et A71. N’hésitez pas à me contacter pour plus d’informations ou pour un accompagnement sur mesure. Honoraires d’agence à la charge du vendeur. Bien non soumis au DPE. Les informations sur les risques auxquels ce bien est exposé sont disponibles sur le site Géorisques : www.georisques.gouv.fr. La présente annonce immobilière a été rédigée sous la responsabilité éditoriale de Mlle Sarah Rozière EI (ID 83696), mandataire indépendant en immobilier (sans détention de fonds), agent commercial de la SAS I@D France immatriculé au RSAC de Clermont-Ferrand sous le numéro 978616993, titulaire de la carte de démarchage immobilier pour le compte de la société I@D France SAS.
Ref: 1678313-4
of
Fees incl. VAT payable by the seller
See the fees scaleEnergy performance diagnosis
Not requiredGreenhouse gas emission index
Not requiredSimilar properties



