

€395,000
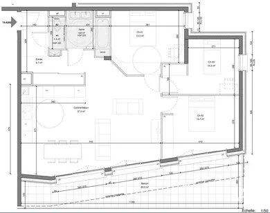
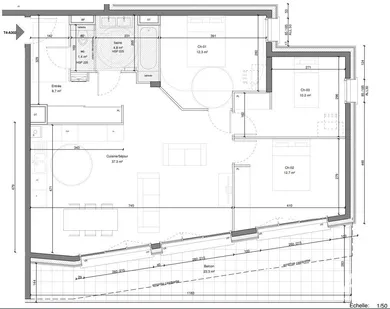
DERNIERS LOTS DISPONIBLES – T4 NEUF DERNIER ETAGE AVEC TERRASSE FILANTE – VUE VERCORS Livraison prochaine à l'automne 2026 Résidence PREMIUM avec ascenseur, adapté PMR, secteur calme et résidentiel Frais de notaire réduit et éligible PTZ (prêt à taux zéro) Dans les hauteurs d’Eybens, découvrez ce vaste T4 avec 3 chambres de 87,4 m² environ. Il est situé au 3ème et dernier étage d’une résidence haut de gamme sécurisée, conforme à la réglementation RT 2012. Vous profiterez d’une grande terrasse filante abritée de 23,3 m² environ, orientée Sud-Ouest, avec une vue sur le Vercors. Un agencement optimisé: -une entrée avec un grand placard, -un grand séjour / cuisine lumineux de 37,3 m² environ avec double accès à la terrasse, -une chambre de 12,7 m² environ avec un grand placard -une seconde chambre de 12,3 m² environ -une troisième chambre de 10,2 m2 environ -une salle de bains : 4,8 m² environ avec baignoire et double vasque, -des WC séparés et suspendus : 1,4 m² environ Des prestations qui apportent confort et qualité : chauffage individuel gaz (chaudière à condensation), menuiseries PVC double vitrage, volets roulants motorisés, isolation thermique et phonique renforcée. Des finitions de qualité: carrelage 60×60 cm dans les pièces de vie, salle de bains équipée d'un meuble double vasque design avec miroir et applique LED, baignoire avec mitigeur thermostatique. La cuisine sera à aménager selon vos préférences. Au cœur d'une résidence de 43 appartements sécurisée et connectée: porte palière blindée, vidéophone couleur, fibre optique, option logement connecté disponible, ascenseur, local vélos/motos sécurisé, espaces verts paysagers, portail coulissant motorisé. Des places de parkings privatives intérieures (avec option borne de recharge pour véhicule électrique) ainsi qu'un garage en sous-sol, un cellier et/ ou une cave sont disponibles en supplément du prix de vente. Un emplacement idéal : un quartier recherché, proche du centre-bourg tout en bénéficiant d'un environnement boisé. A une dizaine de minutes à pied, vous trouverez : des commerces de proximité (boulangerie, boucherie, fromagerie, café, coiffeur, épicerie etc.), les écoles du Bourg, l'arrêt du bus Chrono C4 rejoignant Grenoble (en direction de l'arrêt Victor Hugo). Profitez d'un cadre de vie privilégié à deux pas d’un chemin de randonnée. Diverses activités sportives et culturelles sont proposées par la ville d'Eybens à tout âge. Vous trouverez à proximité un conservatoire de musique et de danse, deux salles de spectacles, une piscine municipale ouverte l'été. La station de ski de Chamrousse est à moins de 40 minutes en voiture. Pour les amateurs, deux golfs sont à proximité. Contactez moi pour plus d'informations. Une visite de chantier est possible sur rendez-vous. T1 et T3 également disponibles dans la même résidence. Honoraires d’agence à la charge du vendeur. Bien non soumis au DPE. Les informations sur les risques auxquels ce bien est exposé sont disponibles sur le site Géorisques : www.georisques.gouv.fr. La présente annonce immobilière a été rédigée sous la responsabilité éditoriale de Mlle Aurélie Georgere EI (ID 91856), mandataire indépendant en immobilier (sans détention de fonds), agent commercial de la SAS I@D France immatriculé au RSAC de GRENOBLE sous le numéro 993974534, titulaire de la carte de démarchage immobilier pour le compte de la société I@D France SAS.
Ref: 1969436-4
of
Fees incl. VAT payable by the seller
See the fees scaleEnergy performance diagnosis
Not requiredGreenhouse gas emission index
Not requiredSimilar properties




Nearby towns
Others property types in Eybens
Others property types nearby