

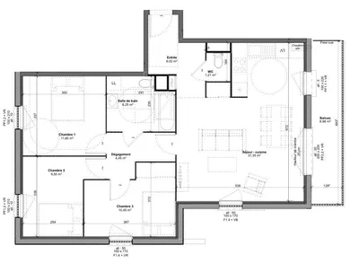
* DERNIERS LOTS DISPONIBLES !!!! * Charmant appartement 4 pièces de 81 m² environ à Marly-la-Ville (95) Situé dans un cadre de vie unique aux portes de Paris, cet appartement de 81 m² environ se trouve à Marly-la-Ville, une commune dynamique du Val d’Oise, à moins de 30 km de la capital. Ce secteur bénéficie d’un emplacement stratégique : proche de l’aéroport Roissy-Charles de Gaulle et des zones économiques de Roissy, il est desservi par la Francilienne et l’autoroute A1, alliant qualité de vie et accessibilité. Situé au 2ième et dernier étage avec ascenseur, l’appartement offre une entrée, une belle pièce de vie lumineuse avec cuisine ouverte, 3 chambres, une salle de bain moderne avec WC. Un WC indépendant Un balcon complète l’ensemble, idéal pour profiter des beaux jours. Conforme aux normes RT2012 et PMR (personnes à mobilité réduite), il dispose de tout le confort moderne : Accès sécurisé par interphone Intratone (gestion via smartphone) Connexion internet via fibre optique (prises RJ45 dans chaque pièce) Chauffage gaz de ville Fenêtres double vitrage, volets roulants électriques dans le séjour Deux parkings en sous-sol, accessible par portail électrique, sont inclus. Idéal pour un primo-accédant ou un investisseur. Frais de notaire réduit ! Honoraires d’agence à la charge du vendeur. Bien non soumis au DPE. Les informations sur les risques auxquels ce bien est exposé sont disponibles sur le site Géorisques : www.georisques.gouv.fr. La présente annonce immobilière a été rédigée sous la responsabilité éditoriale de Mlle Claudine Ferreira EI (ID 84781), mandataire indépendant en immobilier (sans détention de fonds), agent commercial de la SAS I@D France immatriculé au RSAC de COMPIEGNE sous le numéro 933905283, titulaire de la carte de démarchage immobilier pour le compte de la société I@D France SAS.
Ref: 1740764-5
of
Fees incl. VAT payable by the seller
See the fees scaleEnergy performance diagnosis
Not requiredGreenhouse gas emission index
Not requiredSimilar properties




Nearby towns
Others property types in Marly-la-Ville