

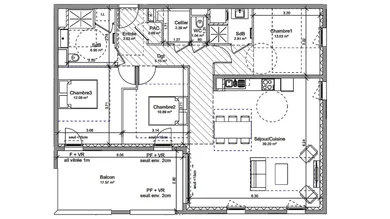
Appartement T4 avec balcon à Vif. Située à Vif, à seulement 20 minutes de Grenoble, la résidence Le Pré des Libellules s’inscrit dans un environnement calme et verdoyant, au pied du massif du Vercors. Entre nature préservée et proximité des commodités, cette adresse d’exception offre un cadre de vie harmonieux entre ville et montagne. Disponible 2026. Un appartement raffiné : Situé au 2 ème étage, cet appartement T4 de 97 m² environ habitables se prolonge par un balcon de 18 m² environ. - Séjour/cuisine de 39 m² environ. - Trois belles chambres dont une suite parentale. - Salle d'eau moderne et WC séparé. - Annexes incluses : 1 box et 1 parking extérieur. De belles prestations : - Pompe à chaleur réversible assurant chauffage, rafraîchissement et production d’eau chaude. - Menuiseries aluminium et volets roulants électriques. - Résidence labellisée BiodiverCity, avec jardin paysager, aires de compostage et espaces favorisant la biodiversité. - Locaux vélos sécurisés et bornes de recharge pour véhicules électriques. L’art de vivre à Vif : - À 5 minutes à pied du centre-ville et de ses commerces. - Écoles maternelles et collège accessibles à pied. - Supermarché, marché et parc public à proximité immédiate. - Bus TAG et gare TER à 20 minutes de Grenoble. - Environnement calme et verdoyant, aux portes du Parc naturel du Vercors. N’hésitez pas à me contacter pour plus d’informations ou pour un accompagnement sur mesure. Honoraires d’agence à la charge du vendeur. Bien non soumis au DPE. Les informations sur les risques auxquels ce bien est exposé sont disponibles sur le site Géorisques : www.georisques.gouv.fr. La présente annonce immobilière a été rédigée sous la responsabilité éditoriale de M. Pierre Magerand EI (ID 86098), mandataire indépendant en immobilier (sans détention de fonds), agent commercial de la SAS I@D France immatriculé au RSAC de Cusset sous le numéro 938729175, titulaire de la carte de démarchage immobilier pour le compte de la société I@D France SAS.
Ref: 1700379-5
of
Fees incl. VAT payable by the seller
See the fees scaleEnergy performance diagnosis
Not requiredGreenhouse gas emission index
Not requiredSimilar properties




Others property types in Vif
Others property types nearby