

€880,500
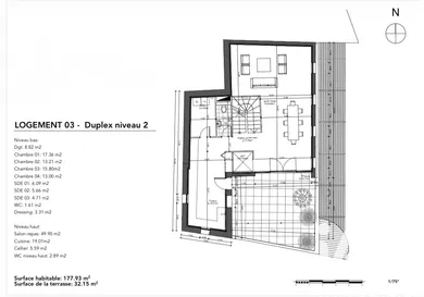
À proximité du centre-ville de Nîmes, duplex T5 avec terrasse exposée sud et ascenseur desservant les deux niveaux. Idéalement situé à proximité immédiate des Arènes de Nîmes, dans un secteur apprécié pour son accessibilité et sa qualité de vie, ce duplex T5 de 178 m² prend place aux deuxième et troisième, et derniers, étages d’une copropriété de standing composée de trois lots. Il en occupe à lui seul les deux derniers niveaux, offrant ainsi une réelle tranquillité et indépendance. Actuellement en cours d’achèvement, sa livraison est prévue en mars. Conçu en duplex inversé, il développe au premier niveau un espace nuit organisé autour de quatre chambres. Un premier espace comprend une chambre avec dressing et salle d’eau, complété par un WC indépendant. La suite parentale bénéficie également d’un dressing et d’une salle d’eau privative avec WC. Deux autres chambres avec rangements intégrés partagent une salle d’eau avec WC. L’une des chambres est aménagée pour répondre aux normes PMR. À l’étage supérieur, la pièce de vie lumineuse accueille un salon et une salle à manger aux volumes équilibrés, ainsi qu’une cuisine complétée par une arrière-cuisine intégrant un espace buanderie. L’ensemble s’ouvre sur une terrasse de plus de 32 m² exposée plein sud, avec vue dégagée sur les toits et sans vis-à-vis direct. Les prestations ont été sélectionnées avec soin, privilégiant des matériaux et des finitions de qualité, notamment un carrelage grand format 80x80, une climatisation gainable et une desserte par ascenseur sur les deux niveaux du duplex. Une place de stationnement complète l’ensemble. Un bien offrant une configuration familiale, un dernier étage avec ascenseur et un extérieur en cœur de ville. Pour tout renseignement complémentaire ou pour organiser une présentation du projet, je reste à votre disposition. La presente annonce immobiliere vise 1 lot situé dans une copropriété de 3 lots au total et ne faisant l'objet d'aucune procédure en cours citée à l'article L. 721-1 du code de la construction et de l'habitation. Montant moyen mensuel de charges déclaré par le vendeur : 0€ par mois (soit 0 € annuel). Honoraires d'agence à la charge du vendeur. Bien non soumis au DPE. Les informations sur les risques auxquels ce bien est exposé, y compris l'obligation légale de débroussaillement, sont disponibles sur le site Géorisques : http://www.georisques.gouv.fr. La présente annonce immobilière a été rédigée sous la responsabilité éditoriale de Mme Déborah Quincieu mandataire indépendant en immobilier (sans détention de fonds), agent commercial de la SAS I@D France immatriculé au RSAC de Montpellier sous le numéro 892670969, titulaire de la carte de démarchage immobilier pour le compte de la société I@D France SAS.
Ref: 1953633
of
Fees incl. VAT payable by the seller
See the fees scaleEnergy performance diagnosis
Not requiredGreenhouse gas emission index
Not required

Similar properties
