
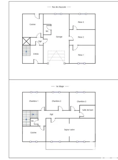
LOCATION VIDE, ___ GARANT PHYSIQUE EXIGÉ, ___ DOSSIER PAR MAIL EN PDF, (VOIR ADRESSE MAIL + liste des documents SUR LA 2ème photo). ___ Rue Suzanne Au cœur de Chelles, dans un quartier résidentiel verdoyant, maison de 7 pièces avec ses nombreux atouts – Idéal pour une Grande Famille et/ou une profession libérale. Située dans un secteur pavillonnaire et au calme, maison construite sur un rez-de-jardin habitable et totalement indépendant. Au rez-de-chaussée : vous trouverez un vaste pièce avec une belle surface de rangements, une salle d'eau avec WC, deux chambres, une cuisine d’été s’ouvrant sur une agréable terrasse donnant sur un jardin de 600m², arboré avec son coin barbecue. A l'étage, sont à votre disposition, un double séjour sur balcon, un dégagement, une cuisine indépendante aménagée, 2 grandes chambres, une salle de bains et WC séparés. Une place de parking et un garage complètent les avantages de ce bien. Située à proximité des commerces, des écoles et des transports en commun, ce pavillon jouit d'une localisation pratique et agréable. _____________GARANT PHYSIQUE EXIGÉ _______________ • MERCI D'ENVOYER VOTRE DOSSIER PAR MAIL EN PDF AVANT TOUTE VISITE : (Voir adresse mail et liste des documents sur la la 2ème photo). • BIEN EN LIGNE = BIEN DISPONIBLE. • MERCI DE VOUS PRÉSENTER LE PLUS PRÉCISÉMENT POSSIBLE LORS DE VOS DEMANDES D'INFORMATIONS : Profession, salaires, type de contrat, …. • CHAUFFAGE ET EAU CHAUDE INDIVIDUELS (chaudière au gaz), Information d'affichage énergétique sur ce bien : classe ENERGIE D indice 186 et classe CLIMAT D indice 40. Les informations sur les risques auxquels ce bien est exposé, y compris l'obligation légale de débroussaillement, sont disponibles sur le site Géorisques : http://www.georisques.gouv.fr. La présente annonce immobilière a été rédigée sous la responsabilité éditoriale de Mme Fatiha El Idrissi mandataire indépendant en immobilier (sans détention de fonds), agent commercial de la SAS I@D France immatriculé au RSAC de CRETEIL sous le numéro 410 896 633, titulaire de la carte de démarchage immobilier pour le compte de la société I@D France SAS. Location non meublée. Montant du loyer mensuel charges comprises : 1995.00 euros / mois. Provision mensuelle avec récupération annuelle : 0.00 euros / mois. Zone soumise à encadrement : non. Dépôt de garantie : 1995 euros. Honoraires TTC à la charge du locataire: 1350 euros (soit 11€/m²).
Ref: 1750375
Energy performance diagnosis
Greenhouse gas emission index