

€526,400
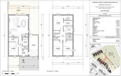
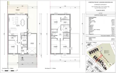
Opportunité à ne pas manquer ! Programme neuf sur la commune d'Argancy. Venez découvrir cette maison de 147 m2 environ, aux prestations de qualité et volumes généreux. - agencement intérieur modulables - extérieurs terminés - prix ajusté en fonction des modifications Vous cherchez un cadre de vie paisible, une maison contemporaine et un projet maitrisé de A à Z ? Cette maison est faite pour vous ! N'hésitez pas à me contacter pour plus d'informations. Honoraires d’agence à la charge du vendeur. Bien non soumis au DPE. Les informations sur les risques auxquels ce bien est exposé sont disponibles sur le site Géorisques : www.georisques.gouv.fr. La présente annonce immobilière a été rédigée sous la responsabilité éditoriale de Mlle Amandine Plano EI (ID 43019), mandataire indépendant en immobilier (sans détention de fonds), agent commercial de la SAS I@D France immatriculé au RSAC de Thionville sous le numéro 879407740, titulaire de la carte de démarchage immobilier pour le compte de la société I@D France SAS.
Ref: 1973310-8
of
Fees incl. VAT payable by the seller
See the fees scaleEnergy performance diagnosis
Not requiredGreenhouse gas emission index
Not requiredSimilar properties




Nearby towns
Others property types in Argancy
Others property types nearby