

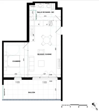
Spacieux 2 pièces avec grand balcon et parking – Antibes (06600) Dans un quartier calme et recherché d’Antibes, découvrez cet agréable 2 pièces de 43,05 m² environ, situé au 2? étage d’une résidence récente et bien entretenue. Idéal pour un investissement locatif ou une résidence principale, ce bien séduit par son exposition sud-ouest et son grand balcon de 15,25 m² environ offrant un bel espace extérieur sans vis-à-vis. L’appartement se compose d’un séjour-cuisine lumineux de 24,85 m² environ, d’une chambre confortable de 11,75 m² environ, et d’une salle d’eau moderne avec WC de 6,45 m² environ. Les volumes sont bien répartis, sans perte d’espace, et la double orientation permet une belle clarté naturelle toute la journée. Une place de parking privative en sous-sol est incluse dans le prix. Le chauffage électrique individuel assure une gestion simple et maîtrisée des charges. ________________________________________ ???? Informations financières • Prix de vente : 299 000 € • Frais de notaire à la charge du vendeur • Surface habitable : 43,05 m² environ • Surface extérieure : 15,25 m² environ (balcon) • Stationnement : 1 place privative en sous-sol ________________________________________ ???? Rentabilité locative estimée Avec un loyer de marché d’environ 785 € par mois, ce bien présente une rentabilité brute avoisinant 3,4 %. Sa localisation stratégique, à proximité de Sophia-Antipolis, des transports et des commerces, en fait un placement patrimonial solide, particulièrement adapté à la location longue durée ou à la location meublée. ________________________________________ ?? Les points forts • Exposition sud-ouest offrant une belle luminosité • Balcon généreux de 15 m² environ, parfait pour les repas ou la détente • Séjour spacieux de près de 25 m² environ • Parking en sous-sol inclus dans le prix • Frais de notaire à la charge du vendeur • Excellent potentiel locatif dans un secteur prisé d’Antibes Honoraires d’agence à la charge du vendeur. Bien non soumis au DPE. Les informations sur les risques auxquels ce bien est exposé sont disponibles sur le site Géorisques : www.georisques.gouv.fr. La présente annonce immobilière a été rédigée sous la responsabilité éditoriale de M. Matthieu Chionchini EI (ID 85877), mandataire indépendant en immobilier (sans détention de fonds), agent commercial de la SAS I@D France immatriculé au RSAC de Grasse sous le numéro 752939330, titulaire de la carte de démarchage immobilier pour le compte de la société I@D France SAS.
Réf : 1863394-15
soit
Honoraires TTC à la charge du vendeur
Voir le barème d'honorairesDiagnostic de performance énergétique (DPE)
Non requisIndice d'émission de gaz à effet de serre (GES)
Non requisBiens similaires




Villes à proximité
Autres types de bien à Antibes
Autres types de bien à proximité