

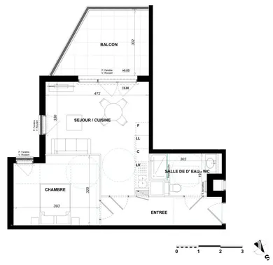
Élégant 2 pièces avec balcon et parking – Antibes Dans un quartier paisible et recherché d’Antibes, découvrez ce bel appartement 2 pièces situé en étage élevé, bénéficiant d’une exposition nord-ouest et d’une vue dégagée. Idéal pour un investissement locatif ou une résidence principale, ce bien combine luminosité, modernité et prestations de qualité. ________________________________________ ???? Caractéristiques du bien • Type : Appartement T2 • Étage : 3? étage • Surface habitable : 43,5 m² environ • Balcon : 10,5 m² environ • Exposition : Nord-Ouest • Stationnement : 1 place privative en sous-sol • Chauffage : Électrique individuel • Performance énergétique : Conforme aux dernières normes thermiques et acoustiques ________________________________________ ???? Prestations et confort • Résidence sécurisée et soignée • Volets roulants électriques • Carrelage grand format dans toutes les pièces principales • Salle d’eau équipée avec meuble vasque, miroir, faïence murale et sèche-serviettes • Double vitrage et isolation phonique renforcée • Ascenseur, local vélos, et espaces communs paysagers • Environnement calme et verdoyant ________________________________________ ???? Cadre de vie Situé dans un secteur résidentiel d’Antibes, cet appartement profite d’un emplacement stratégique à proximité immédiate des commerces, écoles, transports et des principaux axes routiers. Le centre-ville, les plages et Sophia Antipolis sont accessibles en quelques minutes seulement, offrant un équilibre parfait entre vie citadine et sérénité. ________________________________________ ???? Informations financières • Prix de vente : 296 000 € • Frais de notaire à la charge du vendeur • Loyer de marché estimé : 770 €/mois • Rentabilité brute estimée : 3,4 % • Parking inclus dans le prix ________________________________________ ?? Les points forts • Espace lumineux et bien agencé • Balcon de 10,5 m² environ offrant un bel espace extérieur • Chambre spacieuse de 12 m² environ • Prestations contemporaines et confort moderne • Parking privatif sécurisé • Frais de notaire offerts • Emplacement calme et recherché, parfait pour habiter ou investir Honoraires d’agence à la charge du vendeur. Bien non soumis au DPE. Les informations sur les risques auxquels ce bien est exposé sont disponibles sur le site Géorisques : www.georisques.gouv.fr. La présente annonce immobilière a été rédigée sous la responsabilité éditoriale de Mlle Judicaelle Louis EI (ID 92421), mandataire indépendant en immobilier (sans détention de fonds), agent commercial de la SAS I@D France immatriculé au RSAC de DRAGUIGNAN sous le numéro 811245687, titulaire de la carte de démarchage immobilier pour le compte de la société I@D France SAS.
Réf : 1863394-18
soit
Honoraires TTC à la charge du vendeur
Voir le barème d'honorairesDiagnostic de performance énergétique (DPE)
Non requisIndice d'émission de gaz à effet de serre (GES)
Non requisBiens similaires



