

211 100 €
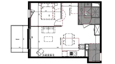
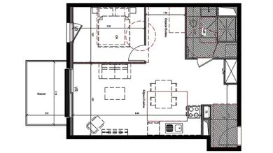
Appartement T2 avec balcon à Clermont-Ferrand. Idéalement située avenue de la République à Clermont-Ferrand, la résidence Origine Franc Rosier, s’intègre dans un environnement dynamique et verdoyant, à proximité immédiate du quartier Montferrand, du stade Marcel-Michelin et du tramway Gravière. Ce projet réunit modernité architecturale, confort et démarche écologique, au sein d’un quartier résidentiel mêlant histoire et renouveau urbain. Disponible 2027. Un appartement raffiné : Situé au 4 ème étage, cet appartement T2 de 52 m² environ habitables se prolonge par un balcon de 6 m² environ. - Un séjour/cuisine lumineux de 28 m² environ. - Une chambre confortable. - Une salle d’eau moderne. De belles prestations : - Chauffage raccordé au réseau de chaleur urbain alimenté à la biomasse. - Menuiseries coulissantes et volets roulants électriques. - Espaces verts paysagers et nombreux locaux vélos au sein de la résidence. Un cadre de vie pratique et verdoyant : - Tramway arrêt Gravière au pied de la résidence. - Écoles Franc Rosier et Jules Michelet accessibles à pied. - Stade Marcel-Michelin à 6 min et centre-ville à 15 min en tramway. - Proximité du Parc Montjuzet et du Jardin Lecoq. - Accès rapide aux autoroutes A75, A89 et A71. N’hésitez pas à me contacter pour plus d’informations ou pour un accompagnement sur mesure. Honoraires d’agence à la charge du vendeur. Bien non soumis au DPE. Les informations sur les risques auxquels ce bien est exposé sont disponibles sur le site Géorisques : www.georisques.gouv.fr. La présente annonce immobilière a été rédigée sous la responsabilité éditoriale de M. Pierre Magerand EI (ID 86098), mandataire indépendant en immobilier (sans détention de fonds), agent commercial de la SAS I@D France immatriculé au RSAC de Cusset sous le numéro 938729175, titulaire de la carte de démarchage immobilier pour le compte de la société I@D France SAS.
Réf : 1678313-6
soit
Honoraires TTC à la charge du vendeur
Voir le barème d'honorairesDiagnostic de performance énergétique (DPE)
Non requisIndice d'émission de gaz à effet de serre (GES)
Non requisBiens similaires



