

336 000 €
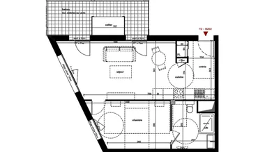
Appartement T2 avec balcon à Saint-Julien-en-Genevois. Au cœur de la résidence contemporaine LUMEN, idéalement située avenue de Genève à Saint-Julien-en-Genevois, découvrez une adresse rare à la frontière suisse. Moderne et durable, la résidence s’inscrit dans une démarche environnementale innovante (façades bois biosourcées, espaces verts paysagers) et propose des prestations de qualité. Disponible 2027. Un appartement raffiné : Situé au 2 ème étage, cet appartement T2 de 47 m² environ habitables s’ouvre sur un balcon de 10 m² environ. - Séjour/cuisine de 18 m² environ. - Belle chambre. - Salle d’eau moderne. - Annexes incluses : 1 parking intérieur et 1 cellier privatif. De belles prestations : - Grandes baies vitrées équipées de brise-soleil orientables bois. - Chauffage collectif par chaufferie biomasse, isolation performante. - Résidence sécurisée avec stationnements en sous-sol, local vélos et caméras dans les parties communes L’art de vivre à Saint-Julien-en-Genevois : - À seulement 230 m de la douane suisse de Perly. - Futur tramway en pied d’immeuble (mise en service prévue en 2028). - Nombreux établissements scolaires, équipements culturels et sportifs à proximité. - Accès rapide à Genève (24 min en voiture) et Annecy (33 min). N’hésitez pas à me contacter pour plus d’informations ou pour un accompagnement sur mesure. Honoraires d’agence à la charge du vendeur. Bien non soumis au DPE. Les informations sur les risques auxquels ce bien est exposé sont disponibles sur le site Géorisques : www.georisques.gouv.fr. La présente annonce immobilière a été rédigée sous la responsabilité éditoriale de Mlle Sarah Rozière EI (ID 83696), mandataire indépendant en immobilier (sans détention de fonds), agent commercial de la SAS I@D France immatriculé au RSAC de Clermont-Ferrand sous le numéro 978616993, titulaire de la carte de démarchage immobilier pour le compte de la société I@D France SAS.
Réf : 1856828-2
soit
Honoraires TTC à la charge du vendeur
Voir le barème d'honorairesDiagnostic de performance énergétique (DPE)
Non requisIndice d'émission de gaz à effet de serre (GES)
Non requisBiens similaires




Villes à proximité
Autres types de bien à Saint-Julien-en-Genevois
Autres types de bien à proximité