

429 000 €
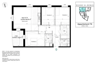
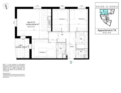
À vendre — Appartement neuf – 4 pièces de 89 m² environ + Loggia – Saint-Denis (93200) Situé à Saint-Denis (93200), cet appartement T4 de 89 m² environ se trouve dans un quartier dynamique offrant un cadre de vie agréable. Cet appartement est situé au 3ème étage avec ascenseur d’un immeuble neuf dont la livraison est prévue mi-2026. Description du bien D’une surface de 89 m² environ, l’appartement se compose de : • une entrée avec dégagement, • une grande pièce de vie conviviale intégrant séjour et cuisine, • trois chambres dont une avec sa salle de bain et WC, • une deuxième salle de bain, • un deuxième WC séparé, • une loggia de 8 m² environ offrant un espace extérieur supplémentaire, idéal pour lire, télétravailler ou profiter des beaux jours. Les frais de notaire réduits constituent un véritable atout pour les futurs acquéreurs souhaitant bénéficier d’un bien moderne, fonctionnel et clé en main. Un emplacement stratégique et très bien desservi La résidence bénéficie d’un accès rapide et pratique à de nombreux points clés : • Accès autoroutes A1 et A86 en quelques minutes, permettant de rejoindre Paris, Roissy-CDG et les zones économiques majeures du Grand Paris. • À proximité immédiate des transports : o Tram T8 (à 2 min à pied), o RER D / Transilien H – gare de Saint-Denis (à 5mn à pied), o Tram T1 (à 15 mn à pied), o Métro ligne 13 – Porte de Paris (à 15mn à pied), Situé dans un quartier vivant et en développement, marqué par l’arrivée de nouvelles résidences et de nombreux services. Sa proximité avec les transports et les grands axes en fait un lieu attractif pour les commerces comme pour les futurs habitants. Un bien neuf, moderne et fonctionnel Ce T4 séduit par son agencement optimisé et ses prestations récentes. Parfait pour un premier achat ou une installation sans travaux. N'hésitez pas à me contacter pour obtenir plus d’informations ou organiser une visite. Honoraires d’agence à la charge du vendeur. Bien non soumis au DPE. Les informations sur les risques auxquels ce bien est exposé sont disponibles sur le site Géorisques : www.georisques.gouv.fr. La présente annonce immobilière a été rédigée sous la responsabilité éditoriale de M. Charbel Braidy EI (ID 77628), mandataire indépendant en immobilier (sans détention de fonds), agent commercial de la SAS I@D France immatriculé au RSAC de PARIS sous le numéro 882827272, titulaire de la carte de démarchage immobilier pour le compte de la société I@D France SAS.
Réf : 1920244-1
soit
Honoraires TTC à la charge du vendeur
Voir le barème d'honorairesDiagnostic de performance énergétique (DPE)
Non requisIndice d'émission de gaz à effet de serre (GES)
Non requisBiens similaires




Villes à proximité
Autres types de bien à Saint-Denis
Autres types de bien à proximité
Autres projets à Saint-Denis