

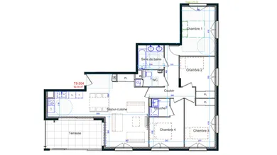
Appartement T5 avec terrasse, Lyon 5. Située Avenue du Point du Jour à Lyon 5, au cœur d’un quartier élégant, la résidence contemporaine Le Privilège conjugue raffinement architectural et qualité de vie. Entre dynamisme urbain et sérénité, cette adresse offre un cadre de vie recherché, à proximité immédiate des commerces, des écoles et des transports. Disponible 2027. Un appartement raffiné : Situé au 2 ème étage, cet appartement T5 de 93 m² environ habitables se prolonge par une terrasse de 11 m² environ. - Séjour/cuisine de 34 m² environ. - Quatre chambres confortables dont une suite parentale. - Salles d'eau modernes. De belles prestations : - Menuiseries extérieures aluminium RAL 9006 avec double vitrage isolant. - Chaudière gaz individuelle à condensation (chauffage + eau chaude). - Résidence sécurisée : digicode, vidéophone, porte palière 3 points. L’art de vivre à Lyon 5 : - À quelques minutes du centre du Point du Jour (commerces, services). - Accès rapide aux transports en commun vers Bellecour, Perrache et Part-Dieu. - Environnement calme, résidentiel et très vert. N’hésitez pas à me contacter pour plus d’informations ou pour un accompagnement sur mesure. Honoraires d’agence à la charge du vendeur. Bien non soumis au DPE. Les informations sur les risques auxquels ce bien est exposé sont disponibles sur le site Géorisques : www.georisques.gouv.fr. La présente annonce immobilière a été rédigée sous la responsabilité éditoriale de M. Pierre Magerand EI (ID 86098), mandataire indépendant en immobilier (sans détention de fonds), agent commercial de la SAS I@D France immatriculé au RSAC de Cusset sous le numéro 938729175, titulaire de la carte de démarchage immobilier pour le compte de la société I@D France SAS.
Réf : 1866827-7
soit
Honoraires TTC à la charge du vendeur
Voir le barème d'honorairesDiagnostic de performance énergétique (DPE)
Non requisIndice d'émission de gaz à effet de serre (GES)
Non requisBiens similaires


