
255 000 €
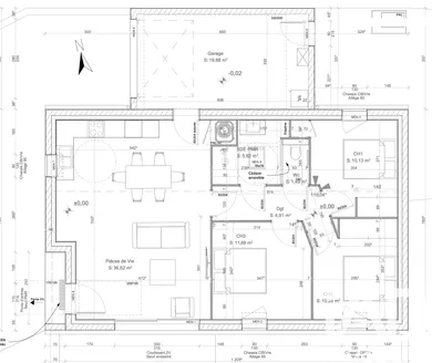
À Saint-Urbain, maison traditionnelle de plain pied de 80m² sur un terrain de 350m² environ. En cours de construction et prévue pour être achevée en juillet 2026, cette maison neuve est parfaite pour ceux qui recherchent un chez-soi chaleureux et moderne dans un cadre verdoyant. Elle offre un agencement optimal avec 3 chambres spacieuses, une salle d'eau, un WC séparé et une pièce de vie avec cuisine ouverte aménagée et équipée. * Possibilité éventuelle d'apporter des modifications d'agencement (jusqu'en avril) Elle dispose également d'un garage attenant. L'extérieur sera clos et aménagé, avec une terrasse et deux places de stationnement. * chauffage individuel par pompe à chaleur (réversible) * cuisine aménagée et équipée par un cuisiniste * Normes PMR * RE 2020 Ne ratez pas l'opportunité de devenir propriétaire de cette maison neuve, où vous n'aurez qu'à poser vos valises! Honoraires d'agence à la charge du vendeur. Bien non soumis au DPE. Les informations sur les risques auxquels ce bien est exposé, y compris l'obligation légale de débroussaillement, sont disponibles sur le site Géorisques : http://www.georisques.gouv.fr. La présente annonce immobilière a été rédigée sous la responsabilité éditoriale de Mme Lucie Boue mandataire indépendant en immobilier (sans détention de fonds), agent commercial de la SAS I@D France immatriculé au RSAC de SAINT NAZAIRE sous le numéro 452564842, titulaire de la carte de démarchage immobilier pour le compte de la société I@D France SAS.
Réf : 1910589
soit
Honoraires TTC à la charge du vendeur
Voir le barème d'honorairesDiagnostic de performance énergétique (DPE)
Non requisIndice d'émission de gaz à effet de serre (GES)
Non requis