
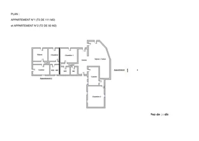
MAISON de 202 m2 environ AU CALME proche des collines divisée en 3 APPARTEMENTS INDEPENDANTS + 1 GRAND GARAGE + JARDIN Cette maison en bon état de 202 m2 environ a été divisée en 3 APPARTEMENTS INDEPENDANTS + 1 GRAND GARAGE. Elle peut être facilement modelée soit : - Une seule belle maison de 202 m2 environ avec 4 ou 5 chambres avec terrasses, jardin et garage fermé. - Ou en un grand appartement de 160 m2 environ au rez-de-chaussée puis un appartement au 1er étage de 42 m2 environ, tous 2 avec une très belle terrasse plein sud. - Ou être REVENDUS INDEPENDAMMENT (3 appartements). Les 3 logements sont en bon état, climatisés et totalement indépendants (chacun possédant un bel extérieur) : - APPARTEMENT N°1 : Au rez-de-chaussée, T3 loué de 111 m2 environ avec de très belles prestations, un salon de plus de 30 m2 environ, une cuisine séparée équipée de 15 m2 environ, une très belle suite parentale de 30 m2 environ avec dressing, douche, baignoire et WC, une 2ème chambre de 13 m2 environ, une salle d'eau et WC supplémentaires, et pour couronner le tout un très bel extérieur de 100 m2 environ (Locatif : environ 1500 euros HC/mois / DPE : D et B) - APPARTEMENT N°2 : Au rez-de-chaussée, T2 libre de 50 m2 environ, avec une grande cuisine séparée, un salon de 15 m2 environ, une chambre de 12m2 environ tous 2 climatisés et une salle d'eau avec WC. Un bel extérieur de plus de 80 m2 environ complète ce bien. (Locatif : 760 euros HC/mois environ / DPE : D et B). - APPARTEMENT N°3 : Au 1er étage (appartement libre) T2/T3 de 42 m2 environ comprenant un séjour avec cuisine ouverte de 20 m2 environ donnant sur une belle terrasse de 40 m2 environ, une salle de douche avec WC, et 2 chambres de 7,5 m2 environ chacune avec rangements. Appartement climatisé avec store banne sur la terrasse. (Locatif : 700 euros HC/mois environ / DPE C et A) - GARAGE : Un Garage d'environ 50 m2 environ complète cette maison (Création de lots de copropriété possible pour revente en 3 ou 4 lots) INVESTISSEURS, MARCHAND DE BIENS ou POUR Y LOGER en FAMILLE, tout est possible, n'hésitez plus et venez visiter ce bien d'exception ! Honoraires d'agence à la charge du vendeur. Information d'affichage énergétique sur ce bien : classe ENERGIE C indice 125 et classe CLIMAT A indice 4. Les informations sur les risques auxquels ce bien est exposé, y compris l'obligation légale de débroussaillement, sont disponibles sur le site Géorisques : http://www.georisques.gouv.fr. La présente annonce immobilière a été rédigée sous la responsabilité éditoriale de Mme Anne-Lise Lua mandataire indépendant en immobilier (sans détention de fonds), agent commercial de la SAS I@D France immatriculé au RSAC de AIX EN PROVENCE sous le numéro 918148396, titulaire de la carte de démarchage immobilier pour le compte de la société I@D France SAS.
Réf : 1962127
soit
Honoraires TTC à la charge du vendeur
Voir le barème d'honorairesDiagnostic de performance énergétique (DPE)
Indice d'émission de gaz à effet de serre (GES)
