

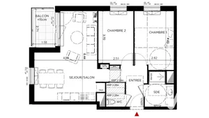
Saint Barthelemy Centre Lumineux et fonctionnel. Très belle qualité d'ensemble. Balcon de 10 m ² avec une orientation Ouest. (3 mn à pied des commerces) Proches de toutes les commodités (bus, et commerces) Parking extérieur inclus. Appartement répondant aux normes et labels de qualité RE2020 Batiment Basse Consommation Faibles charges Frais de notaire réduits Plans, informations et rendez-vous sur demande Photos de synthèse non contractuelles, illustrations d'ambiance. Autres appartements sur demande. Conseiller du secteur disponible 7/7 Honoraires d’agence à la charge du vendeur. Bien non soumis au DPE. Les informations sur les risques auxquels ce bien est exposé sont disponibles sur le site Géorisques : www.georisques.gouv.fr. La présente annonce immobilière a été rédigée sous la responsabilité éditoriale de M. Jean Pontes EI (ID 35006), mandataire indépendant en immobilier (sans détention de fonds), agent commercial de la SAS I@D France immatriculé au RSAC de ANGERS sous le numéro 484017314, titulaire de la carte de démarchage immobilier pour le compte de la société I@D France SAS.
Ref: 1797150-6
of
Fees incl. VAT payable by the seller
See the fees scaleEnergy performance diagnosis
Not requiredGreenhouse gas emission index
Not requiredSimilar properties




Nearby towns
Others property types in Saint-Barthélemy-d'Anjou
Others property types nearby