

€292,000
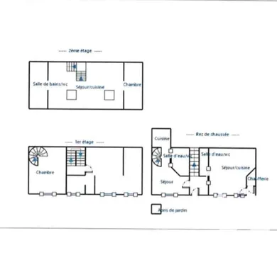
Au coeur de Tréguier/ Immeuble de 4 appartements/ en monopropriété/ Situé au calme. Venez découvrir cet immeuble en pierres qui se compose de quatre appartements, situé au calme en plein cœur de Tréguier, une charmante cité de caractère. Au rez-de-chaussée, vous trouverez un studio entièrement rénové ainsi qu'un duplex type T2 actuellement loué à l'année. Au premier étage (photos disponibles dans l'annonce), un studio refait à neuf vous attend avec un coin nuit, un espace salon convivial, une cuisine ouverte et une salle d'eau lumineuse. Enfin, au dernier étage sous les toits, un studio lumineux propose une grande salle de bain, une chambre et un espace repas-salon. Chaque appartement possède son compteur d'eau et d'électricité, les ouvertures sont récentes. A très vite pour une visite !! Honoraires d'agence à la charge du vendeur. Information d'affichage énergétique sur ce bien : classe ENERGIE D indice 223 et classe CLIMAT D indice 7. Les informations sur les risques auxquels ce bien est exposé, y compris l'obligation légale de débroussaillement, sont disponibles sur le site Géorisques : http://www.georisques.gouv.fr. La présente annonce immobilière a été rédigée sous la responsabilité éditoriale de Mme Pauline CARVENNEC mandataire indépendant en immobilier (sans détention de fonds), agent commercial de la SAS I@D France immatriculé au RSAC de saint-bireuc sous le numéro 850439480, titulaire de la carte de démarchage immobilier pour le compte de la société I@D France SAS.
Ref: 1779965
of
Fees incl. VAT payable by the seller
See the fees scaleEnergy performance diagnosis
Greenhouse gas emission index
Similar properties
