

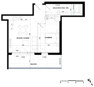
Charmant 2 pièces avec balcon et parking – Antibes Dans un secteur calme et résidentiel d’Antibes, découvrez ce bel appartement 2 pièces situé en étage élevé d’une résidence récente et élégante. Son exposition sud-ouest et ses grandes ouvertures assurent une belle luminosité tout au long de la journée. Idéal pour un investissement locatif ou une résidence principale, ce bien allie confort, modernité et emplacement recherché. ________________________________________ ???? Caractéristiques du bien • Type : Appartement T2 • Étage : 3? étage • Surface habitable : 40,25 m² environ • Balcon : 11,3 m² environ • Exposition : Sud-Ouest • Stationnement : 1 place privative en sous-sol • Chauffage : Électrique individuel • Isolation : Conforme aux dernières normes thermiques et acoustiques ________________________________________ ???? Prestations de qualité • Résidence sécurisée et soignée • Volets roulants électriques • Salle d’eau aménagée avec meuble vasque, miroir et sèche-serviettes • Carrelage grand format dans les pièces principales • Faïence murale toute hauteur dans la salle d’eau • Menuiseries double vitrage • Ascenseur et local vélos • Environnement paysager et piétonnier très agréable ________________________________________ ????? Cadre de vie Situé dans un quartier recherché d’Antibes, à proximité immédiate des commerces, écoles, et transports, cet appartement bénéficie d’une situation idéale : • Accès rapide aux axes principaux et à Sophia-Antipolis • Plages et centre-ville à quelques minutes • Quartier paisible et verdoyant, parfait pour une vie active ou sereine ________________________________________ ???? Données financières • Prix de vente : 283 000 € • Frais de notaire à la charge du vendeur • Loyer estimé : 738 €/mois • Rentabilité brute estimée : environ 3,4 % • Parking inclus dans le prix ________________________________________ ?? Les points forts • Luminosité et exposition sud-ouest • Bel espace de vie de plus de 21 m² environ • Balcon de 11 m² environ, idéal pour les repas en extérieur • Prestations modernes et confort quotidien • Parking privatif sécurisé • Frais de notaire offerts • Idéal investisseur ou jeune couple Honoraires d’agence à la charge du vendeur. Bien non soumis au DPE. Les informations sur les risques auxquels ce bien est exposé sont disponibles sur le site Géorisques : www.georisques.gouv.fr. La présente annonce immobilière a été rédigée sous la responsabilité éditoriale de Mlle Jessica Alessandrini EI (ID 90440), mandataire indépendant en immobilier (sans détention de fonds), agent commercial de la SAS I@D France immatriculé au RSAC de Draguigan sous le numéro 451826549, titulaire de la carte de démarchage immobilier pour le compte de la société I@D France SAS.
Ref: 1863394-16
of
Fees incl. VAT payable by the seller
See the fees scaleEnergy performance diagnosis
Not requiredGreenhouse gas emission index
Not requiredSimilar properties



