

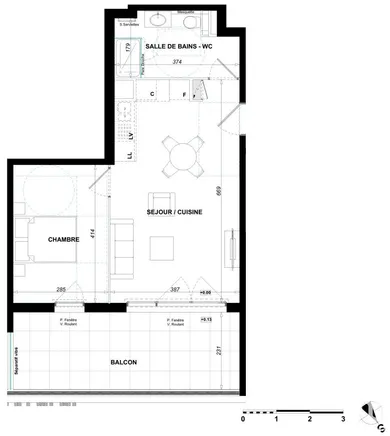
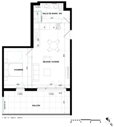
Appartement 2 pièces avec grand balcon – Antibes Situé au cœur d’Antibes, cet appartement de 43,05 m² environ au 1er étage offre un cadre de vie agréable alliant confort et praticité. Intérieur optimisé : • Séjour/cuisine lumineux de 24,85 m² environ • Chambre spacieuse de 11,75 m² environ • Salle de bains avec WC intégré Extérieur : • Balcon de 15,6 m² environ exposé Sud-Ouest, parfait pour profiter du climat azuréen Atouts : • Résidence calme et sécurisée • Parking privatif inclus • Commerces, écoles et transports accessibles à pied • Connexion rapide vers Sophia-Antipolis et les grands axes routiers Prix : 295 000 € – Frais de notaire à la charge du vendeur Un bien idéal pour une résidence principale, un pied-à-terre sur la Côte d’Azur ou un investissement locatif. Contactez-nous dès maintenant pour plus d’informations ou une visite personnalisée. Honoraires d’agence à la charge du vendeur. Bien non soumis au DPE. Les informations sur les risques auxquels ce bien est exposé sont disponibles sur le site Géorisques : www.georisques.gouv.fr. La présente annonce immobilière a été rédigée sous la responsabilité éditoriale de Mlle Jessica Alessandrini EI (ID 90440), mandataire indépendant en immobilier (sans détention de fonds), agent commercial de la SAS I@D France immatriculé au RSAC de Draguigan sous le numéro 451826549, titulaire de la carte de démarchage immobilier pour le compte de la société I@D France SAS.
Ref: 1863394-10
of
Fees incl. VAT payable by the seller
See the fees scaleEnergy performance diagnosis
Not requiredGreenhouse gas emission index
Not requiredSimilar properties



